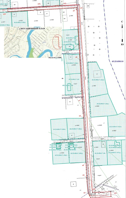
Департамент архитектуры, строительства и земельных отношений Администрации города Кургана информирует, что в связи с обращением АО «СУЭНКО» рассматривается ходатайство об установлении публичного сервитута с целью размещения «ВЛ 0,4 кВ г. Курган, СНТ «Сельхозтехника» от ТП ШК-4-35».
Описание местоположения публичного сервитута: 45:25:050117.
Адрес, по которому заинтересованные лица могут ознакомиться с поступившим ходатайством об установлении публичного сервитута: г. Курган, ул. Пушкина, 83/1, каб. № 7, приёмные дни: вторник, с 9:00 до 12:00 часов, среда с 13:00 до 17:00 часов. Срок подачи заявлений об учете прав на земельные участки в течение 15 дней с момента опубликования
Курган